+91-7045699102
enquiry@profabengineers.com
ambernath@profabengineers.com
Testimonials
CSR
Career
Contact us
Home
About Us
Group Overview
Vision, Mission & Values
Ethos
Milestones
QHSE
Quality
Certification
Products
Perforated Cable Trays
Wire Mesh Cable Trays
Junction Boxes
Utility Profiles
Boltable Rack Support System
Pro Strut Support System
Punched Angle Support System
Flexi Rack Support System
Threaded Rod Support System
Ceiling Trunking
Flush Floor Trunking
Surface Trunking
Bolted Rung Ladders
Welded Rung Ladders
Wide Span Ladders
Projects
Clients
Downloads
Catalogue
Packing Policy
Storage Policy
Testimonials
CSR
Career
Contact us
Projects
Support System
Flexi Rack Support System
Pro Strut Support System
Boltable Rack Support System
Punched Angle Support System
Threaded Rod Support System
Slotted Zed Section Application
Punched Flat Support System
Special Supports
Purlin Brackets
Cable Binder Strip
Cable Trays
Perforated Cable Trays
Bolted Rung Ladder Trays
Wide Span Bolted Rung Ladder Trays
Bolted Rung Ladder Trays Cover, Bends & Accessories
Welded Rung Ladder Trays
Wiremesh Cable Trays
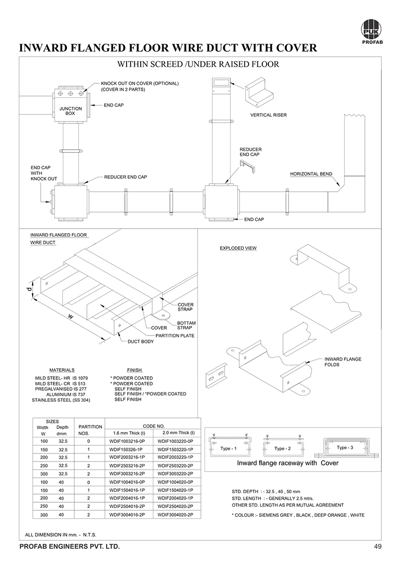
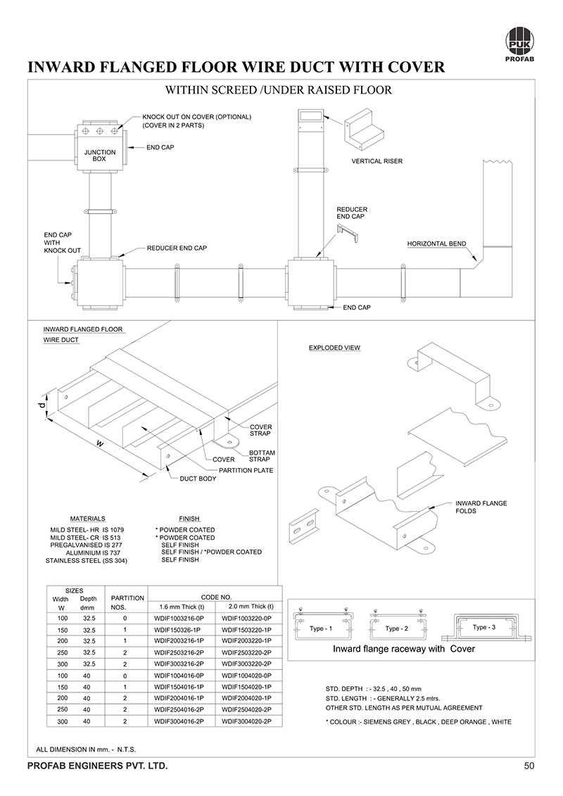
Wire Ducts & Junction Boxes
Cable Ducts
Wire Ducts
Junction Boxes